Where Creative Minds and Industrial Design Collide!
Description
Look no further and take advantage of this character filled warehouse nestled in the heart of Erskineville! This one of a kind adaptive space has been renovated sleekly to take advantage of its open air space ready for the mind to wonder! Ready for someone with a keen eye whom which may be ready to occupy the space as a whole or combine with some creative space occupiers.
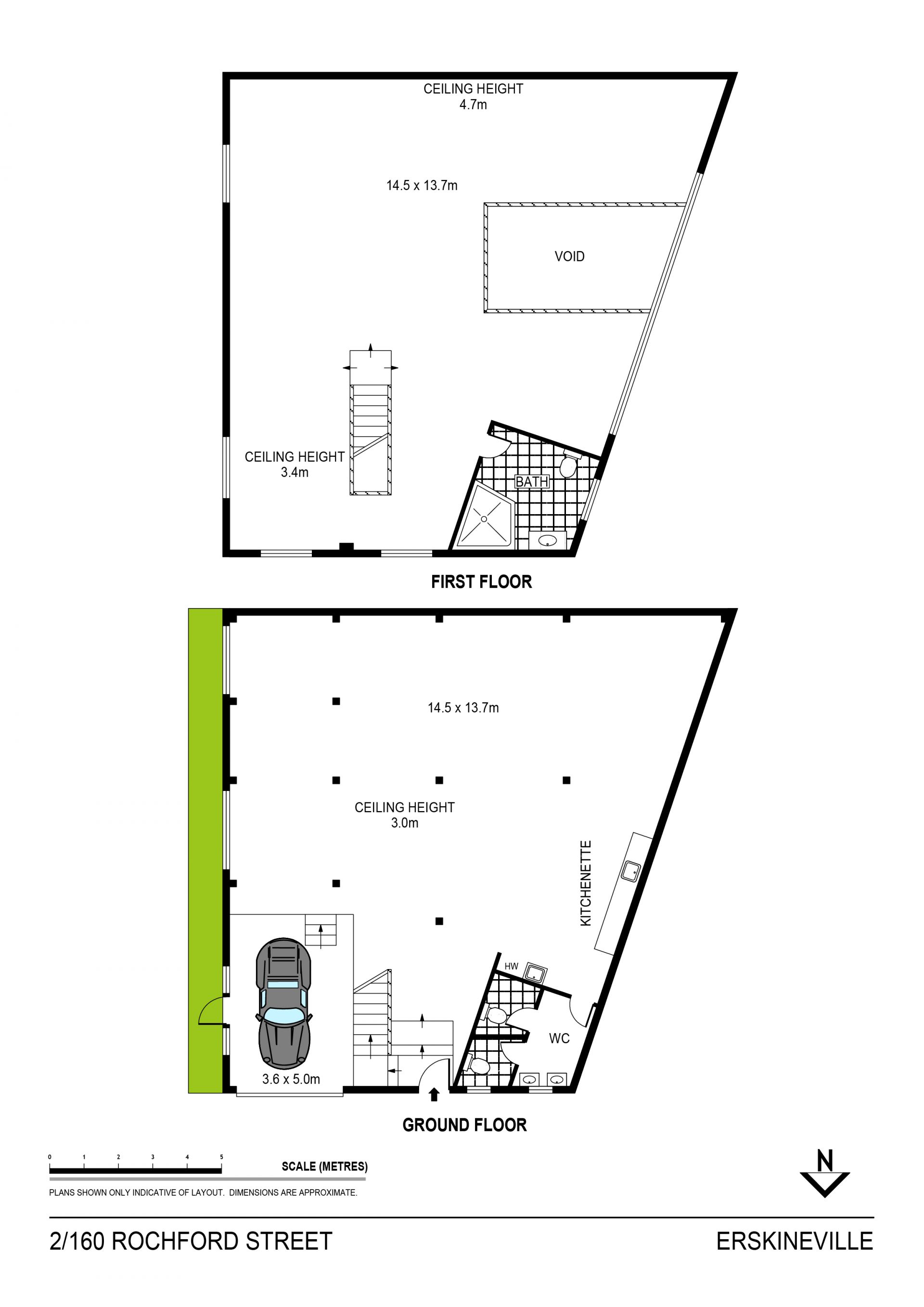
Property includes, roller door access, large open area space, dedicated kitchenette and bathroom facilities. The space is ideal for anyone that is looking to expand their business!
Flexible lease terms available.
Features of property:
- Roller door access
- Open plan dual level warehouse
- Recently renovated!
- Mezzanine level
- APPROX 380 sqm internal
Site - Office and creative industry use
Property includes, roller door access, large open area space, dedicated kitchenette and bathroom facilities. The space is ideal for anyone that is looking to expand their business!
Flexible lease terms available.
Features of property:
- Roller door access
- Open plan dual level warehouse
- Recently renovated!
- Mezzanine level
- APPROX 380 sqm internal
Site - Office and creative industry use
features
- Close to Schools
- Close to Shops
- Close to Transport
- Roller Door Access